
Smart Formwork Axial Force Meter-ը (VW) լայնորեն օգտագործվում է ճարտարագիտության մեջ կաղապարի աջակցող կառույցներում ճնշումը չափելու համար, ինչպիսիք են կամուրջները, շենքերը, երկաթուղիները, տրանսպորտը, հիդրոէներգիան և ամբարտակները:
|
Ծագման վայրը: |
Չանշա, Չինաստան |
|
Ապրանքանիշի անվանումը: |
Kingmach |
|
Մոդելի համարը: |
(VW) JMZX-39XXHAT |
|
Հավաստագրում: |
GB/T 13606-2007 թթ |
|
Պատվերի նվազագույն քանակ: |
1 հատ |
|
Գին: |
Սակարկելի |
|
Փաթեթավորման մանրամասներ: |
Ստվարաթղթեր կամ փայտե պատյաններ: Առկա են նաև հարմարեցված փաթեթավորման լուծումներ: |
|
Առաքման ժամանակ: |
Առաքվում է ամբողջական վճարումը ստանալուց հետո 30 օրվա ընթացքում: |
|
Վճարման պայմաններ: |
T/T նախապես. |
1. Արտադրանքի թրթռացող մետաղալարը պատրաստված է հատուկ բարձր ամրության պողպատե մետաղալարից և խարսխված է միջազգայնորեն ստանդարտացված խարիսխի եռակցման տեխնոլոգիայի միջոցով՝ ապահովելով բարձր կայունություն, գերազանց կատարողականություն և ճշգրտություն՝ 50 տարվա նախագծված ծառայության ժամկետով:
2. Կառուցվածքային դիզայնը և անջրանցիկ նյութերը երաշխավորում են բացառիկ անջրանցիկ կատարում:
3. Ներկառուցված կիսահաղորդչային ջերմաստիճանի սենսորը հնարավորություն է տալիս ավտոմատ կերպով փոխհատուցել ջերմաստիճանը:
4. Ճնշման սենսորը միավորում է խելացի չիպը թվային ազդանշանի մշակման համար՝ ապահովելով առանց աղավաղումների ազդանշանի փոխանցում երկար հեռավորությունների վրա և ուժեղ հակամիջամտությունների հնարավորություն:
5. Ճնշման սենսորը հագեցած է խելացի հիշողության չիպով, որը մշտապես պահպանում է սենսորի մոդելը, սերիական համարը և տրամաչափման գործակիցները արտադրության ընթացքում: Այն ավտոմատ կերպով պահպանում է մինչև 600 չափման պարամետր, ներառյալ ձեռքբերման ժամանակը, մոնիտորինգի կետի ջերմաստիճանը, ճնշման արժեքները, զրոյական կետի պարամետրերը և ջերմաստիճանի փոխհատուցման արժեքները: Այս եզակի ֆունկցիոնալությունը բացառիկ է մեր արտադրանքի համար (Գյուտի արտոնագիր համար՝ 01131544.X; Կառուցվածքային օգտակար մոդելի արտոնագիր՝ 01257348.5):
6. Երբ զուգակցվում է մեր ընկերության գործիքի հետ, այն հնարավորություն է տալիս ուղղակի ճնշում չափել՝ միաժամանակ ցուցադրելով թրթռացող մետաղալարերի հաճախականությունը:
7. Ելնելով սենսորի տրամաչափման պարամետրերից և զրոյական կետի արժեքից՝ այն ուղղակիորեն ցուցադրում է սենսորի վրա կիրառվող միջին ճնշումը՝ վայրկյանում 1 ընթերցման արագությամբ՝ ապահովելով ինտուիտիվ, պարզ և արագ աշխատանք:
JMZX-39XXHAT Formwork Axial Force Gauge (VW &Smart տիպ) նախատեսված է ինժեներական ոլորտներում, ինչպիսիք են կամուրջները, շենքերը, երկաթուղիները, տրանսպորտը, հիդրոէներգիան և ամբարտակները, ճնշում չափելու համար կաղապարամածների աջակցող կառույցներում, ինչպիսիք են կամուրջները, շենքերը, երկաթուղիները, տրանսպորտը, հիդրոէներգիան և ամբարտակները, ինչը հնարավորություն է տալիս բետոնի կաղապարների վրա բեռնվածության պայմանների համապարփակ մոնիտորինգ:
|
Արտադրանք |
Կաղապարամած առանցքային ուժի չափիչ (VW &Խելացի տեսակ) |
|
Շրջանակ |
50/100kN |
|
Ճշգրտություն |
0,5% FS |
|
Բանաձեւ |
0.01kN |
|
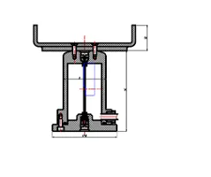
Չափերը |
Տրամագիծը 80 մմ × բարձրությունը 100 մմ |
|
Գործառնական ջերմաստիճան |
-30℃~+80℃ |
|
IP վարկանիշ |
IP68 |




Եթե դուք հետաքրքրված եք մեր արտադրանքով կամ ցանկանում եք դառնալ մեր գործընկերը:
Խնդրում ենք թողնել ձեր կոնտակտային տվյալները, մեր թիմը հնարավորինս շուտ կկապվի ձեզ հետ:
Փոստ: [email protected]
Կապ մեզ հետ՝ +8613808434127
Հասցե՝ No. 188 Tongzipo West Rd, Changsha, Hunan, China